台北信義區大樓法拍

台北信義區大樓法拍|信義區基隆路一段忠駝乙區大樓

台北世界貿易中心【 忠駝乙區】基隆路一段大樓
列印
  • 售3412萬
    售2731萬
    1. 案號:114奮57581
    2. 類型:法拍大樓
    3. 總登記坪數:
    4. 每坪單價:
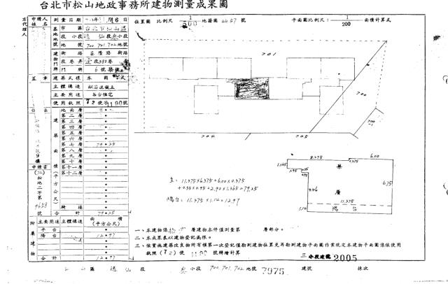
    5. 地址:台北市信義區基隆路一段380巷6號7樓<12>
    1. (煩請告知聯絡人,您是在House-Info房屋網看到廣告,感恩幫忙)
    2. 0986-508-652
    1. 市話:
    2. 公司名稱:
    3. 公司地址:
    台北世界貿易中心【 忠駝乙區】基隆路一段大樓-QR CODE 我要留言 加LINE好友
物件介紹
詳細資料
銷售狀態
待標中
社區/大樓
屋齡
42年
所在樓層
7樓/共12樓
電梯
未知
法拍屋
拍次
第二拍
開標日期
115/01/22
瀏覽人次
49人次
坪數說明
建物登記總坪數
36.07
主建物
23.97
附屬建物
3.92
公共設施
8.18
特色描述

▲拍賣公告:台北 法院 
▲拍賣標的物:
台北市信義區基隆路一段380巷6號7樓<12>
【謄本資料】:
建物登記:
總坪數36.07坪 主建坪23.97坪,附屬坪3.92坪,公設坪8.18坪
【法院筆錄】:

【生活機能】:
【拍次說明】:
標售拍次(目前拍次底價):
第一拍 底價:3412萬
第二拍
底價:2731萬

第三拍 底價:
拍賣日期:
115/01/22
台北∣新北∣桃園∣新竹
★Houseinfohttp://www.xn--ogt54mdnjqrqpix.tw/
【代標服務】
<過濾案件>追蹤拍賣日期...
<評估案件>投標全場陪同及標價最後建議...
<包辦交屋>與法院協商現住人交屋事項...
<代墊尾款>辦理銀行代墊及投標尾款手續...

此案件為法拍屋無法看屋,實際狀況以法院筆錄為主。
詳細資訊了解 請撥李小姐 (02) 8260-2416 | 0986-508652

財欣不動產管理顧份有限公司 【統一編號】28306523
台北信義區大樓法拍-0
台北信義區大樓法拍-0
台北信義區大樓法拍-1
台北信義區大樓法拍-1
台北信義區大樓法拍-2
台北信義區大樓法拍-2
台北信義區大樓法拍-3
台北信義區大樓法拍-3
台北信義區大樓法拍-4
台北信義區大樓法拍-4
物件留言
請注意,如果您詢問的內容與物件不相符合或是廣告,經過審核,系統將會直接刪除您的發問內容
等待圖示
相似物件
免責聲明:House-Info房屋網平台系統為租用式開放房屋買賣網站建置平台,僅提供會員查詢-台北市,信義區,大樓-等房屋資訊參考,並不涉入任何諮詢、交易。 物件(服務)聯絡人公佈的資訊、文字、照片、圖形、產權、廣告內容、或其他資料若有不實或違法情事,或與客戶聯絡交易過程中若衍生民事或刑事等法律問題,皆與House-Info房屋網站無關,所有商標、文章、名稱等版權,皆歸屬原著作者所有!