新北樹林大樓法拍

新北樹林大樓法拍|樹林區北大特區中悅維也納大樓

樹林區北大特區【 中悅維也納】學府路大樓
列印
  • 售4282萬
    售3427萬
    1. 案號:114助辰6188
    2. 類型:法拍大樓
    3. 總登記坪數:
    4. 每坪單價:
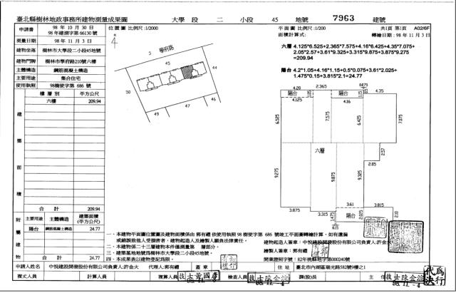
    5. 地址:新北市樹林區學府路210號6樓<23>
    1. (煩請告知聯絡人,您是在House-Info房屋網看到廣告,感恩幫忙)
    2. 0986-508-652
    1. 市話:
    2. 公司名稱:
    3. 公司地址:
    樹林區北大特區【 中悅維也納】學府路大樓-QR CODE 我要留言 加LINE好友
物件介紹
詳細資料
銷售狀態
待標中
社區/大樓
中悅維也納(中悅建設)
屋齡
16年
所在樓層
6樓/共23樓
電梯
未知
法拍屋
拍次
第三拍
開標日期
115/01/14
瀏覽人次
42人次
周邊環境
生活機能
北大特區,距北大高中步行約4分鐘,離三鶯二橋車程約2分鐘,興建中捷運三鶯線LB06站(三峽/國家教育研究院)、恩主公醫院、三峽交流道車程約5~7分鐘
坪數說明
建物登記總坪數
115.45
主建物
63.51
附屬建物
7.49
公共設施
27.59
停車位
16.86
特色描述

▲拍賣公告:新北 法院 
▲拍賣標的物:
新北市樹林區學府路210號6樓<23>
【謄本資料】:
建物登記:
總坪數115.45坪主建坪63.51坪,附屬坪7.49坪,停車坪16.86坪,公設坪27.59坪
【法院筆錄】:
拍賣標的由債務人與其家人自住,拍定後應予點交。
【生活機能】:
【拍次說明】:
標售拍次(目前拍次底價):
第一拍 底價:5352萬
第二拍
底價:4282萬
第三拍
底價:3427萬

拍賣日期:
115/01/14
台北∣新北∣桃園∣新竹
★Houseinfohttp://www.xn--ogt54mdnjqrqpix.tw/
【代標服務】
<過濾案件>追蹤拍賣日期...
<評估案件>投標全場陪同及標價最後建議...
<包辦交屋>與法院協商現住人交屋事項...
<代墊尾款>辦理銀行代墊及投標尾款手續...

此案件為法拍屋無法看屋,實際狀況以法院筆錄為主。
詳細資訊了解 請撥李小姐 (02) 8260-2416 | 0986-508652

財欣不動產管理顧份有限公司 【統一編號】28306523
新北樹林大樓法拍-0
新北樹林大樓法拍-0
新北樹林大樓法拍-1
新北樹林大樓法拍-1
新北樹林大樓法拍-2
新北樹林大樓法拍-2
新北樹林大樓法拍-3
新北樹林大樓法拍-3
物件留言
請注意,如果您詢問的內容與物件不相符合或是廣告,經過審核,系統將會直接刪除您的發問內容
等待圖示
相似物件
免責聲明:House-Info房屋網平台系統為租用式開放房屋買賣網站建置平台,僅提供會員查詢-新北市,樹林區,大樓-等房屋資訊參考,並不涉入任何諮詢、交易。 物件(服務)聯絡人公佈的資訊、文字、照片、圖形、產權、廣告內容、或其他資料若有不實或違法情事,或與客戶聯絡交易過程中若衍生民事或刑事等法律問題,皆與House-Info房屋網站無關,所有商標、文章、名稱等版權,皆歸屬原著作者所有!